Simplify your CAD workflow.
With this service, teams are free from tedious manual work and can instead focus on achieving powerful business results. High-quality Matterport CAD files are generated hassle-free and affordably from the accurate point cloud in your digital twin. Download sample CAD files created for this space.

Receive files in days, not weeks.
Whether you’ve been manually drawing models yourself or outsourcing to vendors to go onsite, Matterport streamlines your workflow to automatically generate and upload your CAD file in days with easy ordering and ready-to-use quality drawings without tedious vendor quality management.
Design files delivered faster than ever.
With a Professional subscription plan or higher, you can get your CAD files in as fast as 3 business days. Our versatile offering includes four different building element output options, ensuring flexibility and customization.

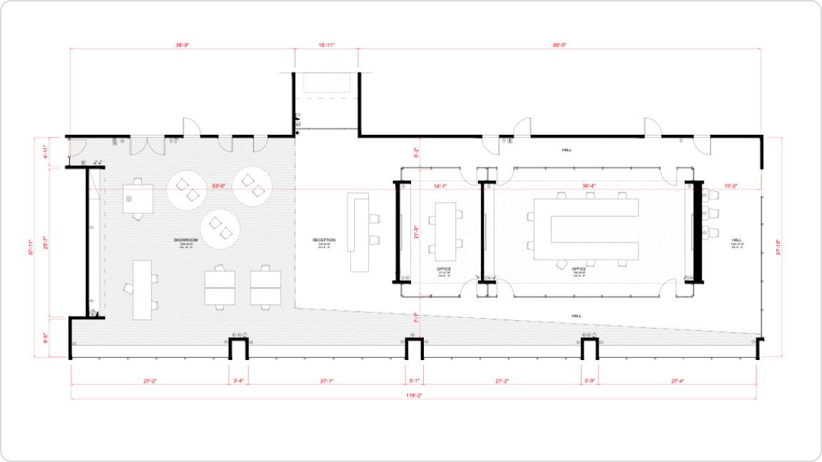
Architecture

Architecture & Interior Furniture

Architecture & Electrical

Architecture, Electrical & Interior Furniture
How to order your CAD file:
Step 1
Create a digital twin of a space.

Simplify and accelerate design workflows with Matterport's CAD file add-on
CAD FAQs
Before purchasing your CAD file, we will provide an estimated price. This estimate is automatically generated by considering the square footage of the Matterport space and the chosen building features. The estimated cost includes external areas not included in the final CAD file output. The final price is based on the delivered CAD File (.DWG) size and may vary from the initial estimate. If you require more details about the pricing, please don't hesitate to contact us.
Our file formats cater to industry standards, ensuring seamless integration into your existing workflows. Deliverable file formats include:
.DWG CAD format of floor plans and reflected ceiling plans (only for orders with Electrical option selected.)
.DXF Exported from CAD
PDF set of images for all floor plans and reflected ceiling plans (only for orders with Electrical option selected.)
.CTB file (plot styles for CAD, aka printing standards)
When processing is complete, the CAD file will be automatically uploaded to the model's Downloads tab and appear in the model's Add-On CAD order card.

